貸家のフルリフォームで快適生活!

一級建築士もいるエネサンスにお任せください♪
| 所在地 | 福島県郡山市 | 築年数 | 40年 |
|---|---|
| 建物種類 | 戸建 |
| 延べ床面積 | - |
| 構造 | 木造 |
| リフォーム箇所 | 外壁塗装、キッチン、トイレ、浴室、蟻害対策 |
| 費用 | 600万円 |
| 依頼のきっかけ | |
| 依頼の内容 | 工期 1ヶ月 施工店 エネサンス東北
|
外装・内装
- Before

- After
キッチン
- Before

- After
蟻害対策
柱の蟻害
土台の蟻害
柱の蟻害は添え柱で補強しました
土台の蟻害は新しい土台へ交換しました
その他①
新しい梁で構造の補強もしました
断熱材を入れています
その他②
施工前トイレ
施工後トイレ
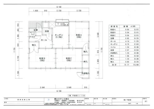
施工前 図面
施工後 図面

【担当者より】間取り変更も行った貸家のフルリフォームです。築40年で蟻害もありました。戸建てタイプの水廻り設備機器を入れグレードUPしています。構造面も補強し新築の様な仕上がりとなりました。































